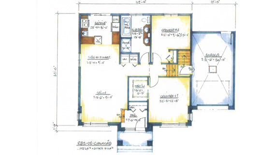
Description
La CITIZ est une jolie maison de plain-pied qui affiche un look urbain. Très fonctionnelle, elle offre une surface habitable qui répondra à vos besoins. C'est la maison idéale pour le premier acheteur.
Le sous-sol offre une surface habitable supplémentaire. Il est possible d'avoir une chambre, une salle de bains, une salle de lavage, une salle familiale et/ou une salle de lecture. Un garage
simple complète le tout.
Grandeurs
- Superficie totale : 1086 pieds carrés
- RDC : 1086 pieds carrés
- Étage : non disponible
- Garage : 374 pieds carrés
- Salle familiale : non disponible
localisation
(*) Description à titre indicatif seulement. Les grandeurs et dimensions sont approximatives.
(*) Certains modèles peuvent ne pas être permis dans un projet selon la réglementation en vigueur.



