Description
Nos cottages semi-détachés sont d’allure très contemporaine. Que ce soit le Pinot Gris ou le Camus, ils sont très spacieux. Le rez-de-chaussée, à aire ouverte, comprend un vestibule avec accès au garage, une cuisine fonctionnelle, une salle à manger, un salon ainsi qu'une salle d'eau avec espace pour la laveuse et la sécheuse. Une fenestration abondante et un grand balcon complète le tout. Un garage simple complète le tout.
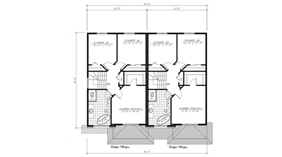
L'étage comprend deux ou trois chambres, selon le modèle qui vous convient le mieux, ainsi qu'une salle de bains. À vous de choisir.
Le sous-sol peut être aménagé selon vos besoins. Vous avez plein de possibilités.
Grandeurs
- Superficie totale : 1350 pieds carrés
- RDC : 592 pieds carrés
- Étage : 758 pieds carrés
- Garage : 225 pieds carrés
localisation
(*) Description à titre indicatif seulement. Les grandeurs et dimensions sont approximatives.
(*) Certains modèles peuvent ne pas être permis dans un projet selon la réglementation en vigueur.





