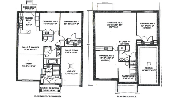
Description
La Fascinante est fascinante!!! Sa conception lui donne des espaces qui sauront répondre aux besoins de votre famille en couple ou avec enfants. Elle dispose d'une belle fenestration.
Le sous-sol offre une grande surface habitable supplémentaire. Vous avez la possibilité d'avoir une salle familiale, une chambre, une salle de bains, une salle de lavage et/ou une salle de lecture. Un garage simple complète le tout.
Grandeurs
- Superficie totale : 1290 pieds carrés
- RDC : 1290 pieds carrés
- Étage : non disponible
- Garage : 288 pieds carrés
- Salle familiale : non disponible
localisation
(*) Description à titre indicatif seulement. Les grandeurs et dimensions sont approximatives.
(*) Certains modèles peuvent ne pas être permis dans un projet selon la réglementation en vigueur.




