Description
Le Languedoc I et II est une maison polyvalente d'allure conventionnelle offrant de multiples possibilités. Son architecture extérieure lui confère une prestance digne des plus beaux quartiers.
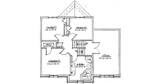
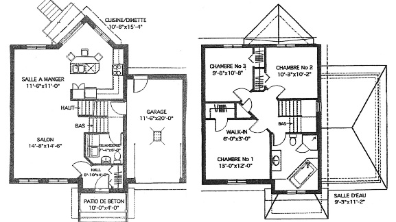
Son rez-de-chaussée est de style air ouverte vous offrant l'espace de vie quotidienne. L'étage comprend deux ou trois chambres, selon le modèle qui vous convient le mieux, ainsi qu'une salle de bains fonctionnelle. Également, il est aussi possible d'avoir, en option, une grande salle de séjour pour votre bureau ou cinéma maison.
Le sous-sol de bonne grandeur vous permet d'aménager des espaces pratiques et conviviaux répondant à vos besoins évolutifs. Un garage simple de bonne grandeur complète cette maison.
Grandeurs
- Superficie totale : 1416 pieds carrés
(Pinot Noir II, 1816 pieds carrés) - RDC : 708 pieds carrés
- Étage : 708 pieds carrés
- Garage : 264 pieds carrés
- Salle familiale : 264 pieds carrés (option Languedoc II)
localisation
(*) Description à titre indicatif seulement. Les grandeurs et dimensions sont approximatives.
(*) Certains modèles peuvent ne pas être permis dans un projet selon la réglementation en vigueur.










