Description
Le Syrah est une maison pratique. Vie de couple ou vie de famille, c'est la maison qu'il vous faut.
Son rez-de-chaussée, de style air ouverte, comprend un grand vestibule fermé, une cuisine spacieuse, une salle à manger, un salon ainsi qu'une salle d'eau avec espace pour la laveuse et la sécheuse sur le palier descendant au sous-sol.
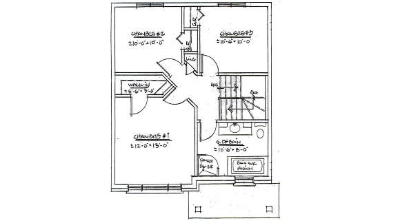
L'étage comprend trois chambres ainsi qu'une salle de bains fonctionnelles. Également, il est aussi possible d'avoir, en option, une grande salle de séjour pour votre bureau ou cinéma maison.
Un garage simple de bonne grandeur complète cette maison.
Grandeurs
- Superficie totale : 1322 pieds carrés
- RDC : 661 pieds carrés
- Étage : 661 pieds carrés
- Garage : 264 pieds carrés
- Salle familiale : non disponible
localisation
(*) Description à titre indicatif seulement. Les grandeurs et dimensions sont approximatives.
(*) Certains modèles peuvent ne pas être permis dans un projet selon la réglementation en vigueur.








